Câu hỏi tư vấn thiết kế nhà 4.5×14 làm căn hộ dịch vụ
Xin chào Kiến trúc sư Công ty Nhà Đẹp Sài Gòn
Tôi có mảnh đất 4.5×14. Tôi dự định xây 4 tầng làm căn hộ mini cho thuê. Mong kiến trúc sư tư vấn giúp tôi.
Cảm ơn anh chị em ( Chị An).
Việc tìm đơn vị thiết kế thi công và báo giá xây nhà trọn gói Tphcm uy tín, chuyên nghiệp là công việc vô cùng quan trọng, ảnh hưởng trực tiếp đến chất lượng, độ bền của công trình cũng như giúp bạn tiết kiệm được khoản chi phí xây dựng ở mức tốt nhất.
Tư vấn thiết kế nhà 4.5×14 từ Nhà Đẹp Sài Gòn
Chào chị An. Đầu tư căn hộ dịch vụ là một hướng đầu tư hiệu quả đem lại thu nhập liên tục và lâu dài cho chủ nhà. Qua thông tin chị gửi và kiểm tra quy hoạch thì công trình của chị được phép xây tối đa 1 trệt, 1 lủng, 3 lầu, mái che thang. Theo như chị mô tả thì chị chỉ cần xây 1 trệt 03 lầu. Các kiến trúc sư của công ty thiết kế Nhà Đẹp Sài Gòn xin gửi chị bản vẽ tư vấn thiết kế như sau:
Tầng trệt
khu vực phía trước tận dụng làm nhà để xe và 01 phòng cho thuê phía sau.

Các tầng 1,2,3
Được chia 02 phòng , mỗi phòng đều có vệ sinh riêng, khu bếp nấu được bố trí gọn ngay lối vào với đủ công năng. Liền kề là vị trí tủ lạnh, Tivi, tủ áo.

Cùng xem ngay: Thiết kế nhà nhỏ và méo trong hẻm nhỏ cho 02 vợ chồng trẻ


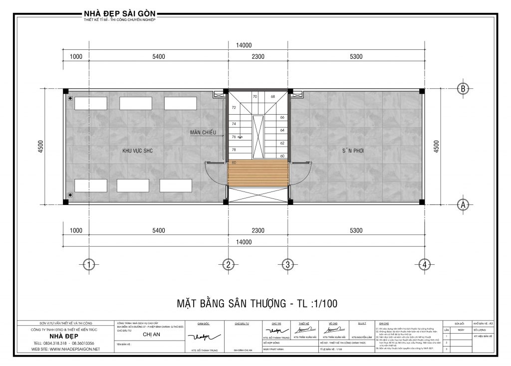
Phần sân thượng
Được bố trí làm chỗ giặt phơi phía sau, sân thượng phía trước sẽ được bố trí như một khu sinh hoạt chung cho khu nhà.

Một lần nữa Nhà Đẹp Sài Gòn xin cảm ơn sự tin tưởng của chị An . Mong có sự phản hồi từ phía Chị để bản vẽ thiêt kế được hoàn chỉnh theo mong muốn của gia đình.
Nhà Đẹp Sài Gòn – “Thiết kế tỉ mỉ – Thi công chuyên nghiệp”
CAM KẾT VÀNG cho đẳng cấp khác biệt:
Công nhân Nhà Đẹp trực tiếp thi công, KHÔNG BÁN THẦU (chịu phạt gấp 10 hợp đồng nếu bán thầu).
Nhiều công ty KHÔNG HỀ CÓ THỢ vẫn nhận thi công để BÁN THẦU: khoán trắng phần nhân công cho thầu tư, ngụy biện bằng cái tên “đội thi công”, “thầu phụ”…
HÃY SÁNG SUỐT VÌ NGÔI NHÀ CỦA CHÍNH BẠN.

BÀI VIẾT LIÊN QUAN
Báo Giá Xây Nhà Trọn Gói Giá Rẻ, Trọn Gói tại TPHCM năm 2025
Xây nhà trọn gói tại Tphcm mới nhất năm 2024 giá chỉ từ 4.600.000đ/m2. Đơn [Xem Chi Tiết]
Th5
Báo Giá Xây Nhà Phần Thô Và Nhân Công Hoàn Thiện 2024
Báo giá xây nhà phần thô và nhân công hoàn thiện năm 2024 giá chỉ [Xem Chi Tiết]
Th1
Báo giá thiết kế nhà Tphcm năm 2024 và các vùng lân cận
Thiết kế kiến trúc cho nhà phố từ 90.000 đ/m2 (Gồm Kiến trúc, Kết Cấu, [Xem Chi Tiết]
Th12
Báo giá sửa chữa nhà trọn gói tại Tphcm – Cải tạo nhà giá rẻ
Đơn giá sửa chữa nhà trọn gói tại TPHCM chỉ từ 70.000/m2. Báo giá sửa [Xem Chi Tiết]
Th12